





















Stadtbaustein B3 Heidelberg BAHNSTADT W6
AN LANGEM ANGER UND SCHWETZINGER TERRASSE“
Im Kreuzungspunkt der zentralen Stadträume der Bahnstadt Langer Anger und Schwetzinger Terrasse konturiert das Eckgebäude an zentraler Lage den Stadtraum. Die Einschnitte der Loggien schaffen für die Wohnungen Logen zum Stadtraum und geben der Fassade plastische Tiefe. Der Duktus dieser Fugen schafft Massstäblichkeit und klärt die Übergänge zu den Nachbarn. Die Materialität der Fassaden bindet es in die Identität des Blocks W6 in seiner Gesamtheit ein.
Die lebendige, klar strukturierte Abfolge von öffentlichen, halböffentlichen und privaten Freiräumen charakterisieren das Konzept. Die unmittelbar an den öffentlichen Raum anschließende Erdgeschosszone ist gewerblich genutzt - in der Ecke durch eine Cafe mit Außenbewirtschaftung zur Schwetzinger Terrasse. Nutzung und der Wechsel von Schaufensterflächen und geschlossenen Wandflächen aus Glasmosaik entsprechen der besonderen städtischen Lage und beleben den Straßenraum.
Ein lichtes, räumlich attraktives Treppenhaus verbindet den Stadtraum mit dem grünen Innenhof. Mehr als nur zur Erschließung dient es auch als Ort der informellen nachbarschaftliche Begegnung.
Die Wohnungen selbst sind einerseits geprägt vom Bezug zu den attraktiven Stadträumen des langen Angers wie der Schwetzinger Terrassen, sie verfügen andererseits „komplementär“ auch mit dem grünen Innenhof über einen ruhigen, der Nachbarschaft des Baufelds vorbehaltenen Freiraum .
WOHNEN UND ARBEITEN IN DER STADT
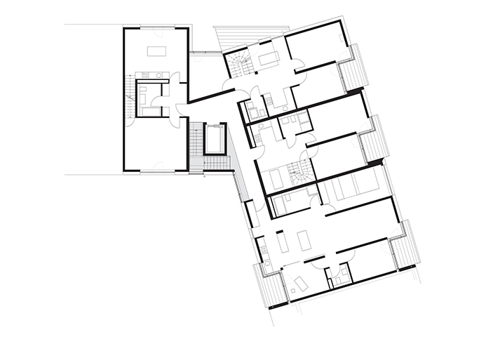
Auf 6 Wohnebenen verteilt, liegen 2 Gewerbe- und 17 Wohneinheiten.
2 Ladeneinheiten (112 und 94 m²)
1 Loft-Wohnung mit Gartenanteil (63 m²)
3 Atelier-Wohnungen mit Loggien (62 m²)
10 Loft-Wohnungen mit Loggien (59,75 und 105 m²)
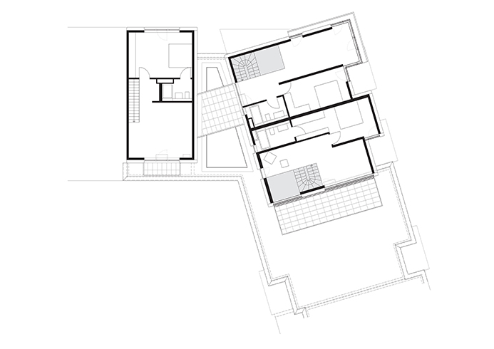
3 Maisonette Wohnungen mit Dachterrassen (110, 114 und 122 m²)
Alle Wohnungen verfügen über Tiefgaragenstellplätzen und Abstellflächen auf der UG / TG Ebene.
Die Vielfalt des Angebots unterschiedlicher Grundrisse, aber auch die Nutzbarkeit des einzelnen Grundrisses selbst ist die Antwort auf die vielfältigen Formen städtischen Wohnens. Den Bewohnern eröffnen sich verschiedene Optionen ihren Lebensraum zum Wohnen und Arbeiten zu gestalten.
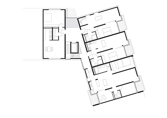
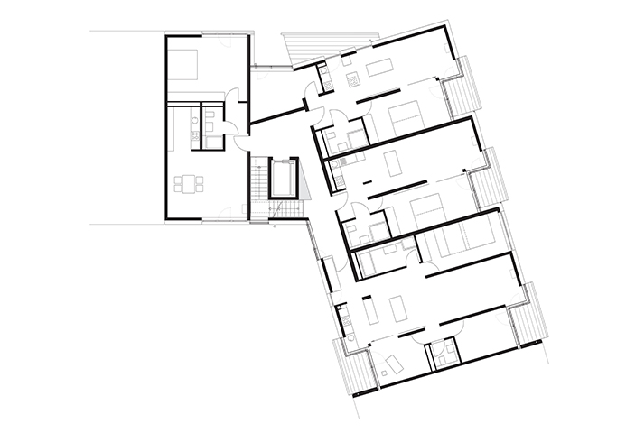
Ein zentraler Wohn-Ess-Bereich als Gemeinschaftsraum bildet das Zentrum der Loft-Wohnungen.
Bei den größeren Wohnungen ist dieser über die Gebäudetiefe zwischen den Außenräumen durchgesteckt. Die dort angeordneten Loggien geben den Wohnungen einen geschützten Außenraum.
Er orientiert sich damit sowohl zum sonnigen Hof als auch zur attraktiven Stadt. Mit dem Element der Loggia wird der Freiraum in den Grundriss einbezogen, so wird er Teil der Wohnung. Die schwellenlose Anbindung schafft räumlich und funktional Großzügigkeit.
Um den zentralen Wohnbereich herum sind die Individualräume angelagert und teilweise über Schiebetüren großzügig mit ihm verbunden. Auch sie sind vielfältig nutzbar, als klassische Kinder- oder Schlafzimmer oder eben als Home Office-, Musik- oder Medienräume.
Maisonetten mit großzügigen Dachterrassen eröffnen den Bewohnern den Blick über die südliche Bebauung des Blocks hinweg in den freien Landschaftsraum Pfaffengrund. Für Familien eine innerstädtische Alternative zum freistehenden Haus in der Peripherie.
EFFIZIENZ UND GROSSZÜGIGKEIT
Knapp gehaltene Grundrisse charakterisieren die Wohnungen mit dem Ziel preiswerten Wohnraum zu erhalten. Der Verzicht auf Flure schafft Mehrraum und damit Mehrwert für das individuelle Wohnen. Zahlreiche Blickbezüge und Verbindungen zum ruhigen Hof und zum Stadtraum Langer Anger und Schwetzinger Terrasse, lassen das hochwertige Umfeld Teil jeder einzelnen Wohnung werden und ermöglichen Großzügigkeit – trotz großer Effizienz des Flächenangebots.
NACHHALTIGKEIT x 3
Die flexible Anlage der Grundrisse der Wohnungen, ihre Einbindung in den Stadtraum und die energetische Ausführung als zertifiziertes Passivhaus sind als wesentliche Aspekte nachhaltigen Wohnungsbaus Grundlage des Konzepts.