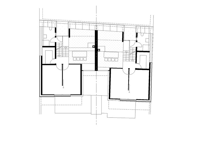
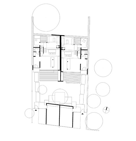
Baugemeinschaft Küferstraße
Aufgabe:
Konversion einer Gewerbebrache Neubau von zwei Wohneinheiten
Auszeichnung:
Beispielhaftes Bauen Architektenkammer 2009
Auftraggeber:
Privat
Wohnfläche:
2 X 150 m²
Bauzeit:
Bezug 2006
Planung:
Jöllenbeck & Wolf Architekten BDA
Planung Leistungsphasen 1-9
Mitarbeit:
Martina Kleinbauer
Tragwerksplanung:
Gruninger & Schrüfer Ingenieure
Fotografien:
Karl Ackermann / Architekten
















