Lageplan
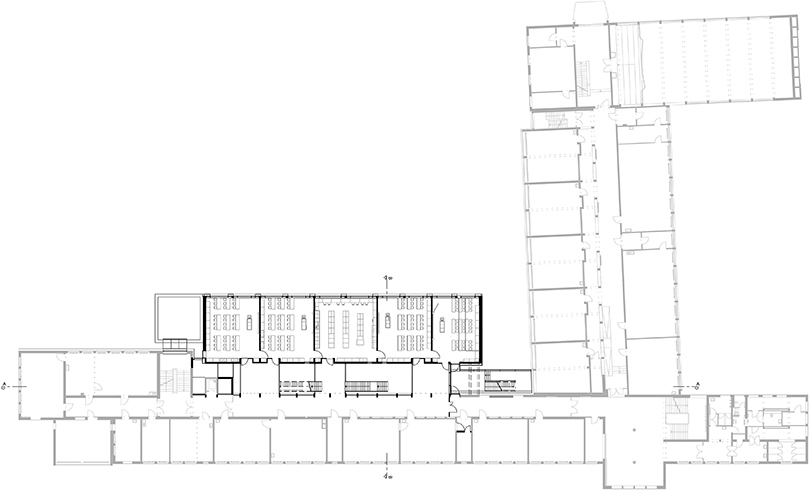
Erdgeschoss
1. Obergeschoss
2. Obergeschoss
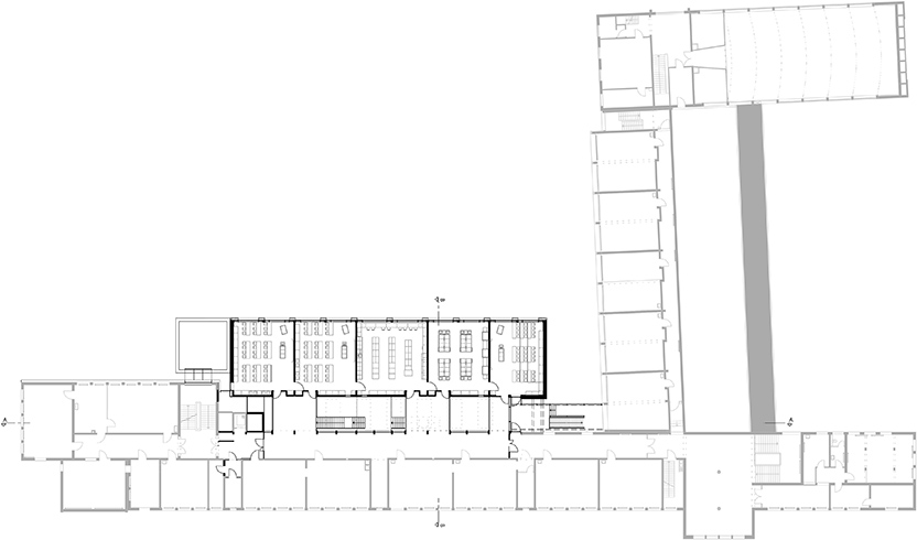
Schnitt
Schnitt

Bunsengymnasium Heidelberg

Zwischen Stadt und Universität

Das 1950 in Heidelberg Neuenheim erbaute und in verschiedenen Bauabschnitten erweiterte Bunsengymnasium ist baulich an die aktuellen Anforderungen anzupassen. Aus einer im Vorlauf erarbeiteten Analyse der (städte-) baulichen Anlage und der Inhalte der Schule wurden für die langfristige Entwicklung übergeordnete Ziele
abgeleitet:
• Fassung und Öffnung - Erforderliche Ergänzungen werden als kompakte Erweiterung des Bestands bzw. als Setzung an den Rändern des Grundstücks geplant. Es entstehen
gefasste Höfe, die die Schule zum städtebaulichen Umfeld öffnen - sie mit Universität und dem Quartier Neuenheim verknüpfen.
• Der Schulgemeinschaft fehlt ein verbindender Ort der Kommunikation. Die aktuelle Aufgabestellung bietet die Chance die vorhandene stringente Erschließung zu weiten
und sie als integraler Teil des Lernraums Schule zu entwickeln.
• Die Naturwissenschaften sind Schwerpunkt des Lehrinhalts der Schule. Mit der Erweiterung können die Räume der Naturwissenschaften in ihrem Zusammenhang erkennbar gemacht und zentral angebunden werden.

 

 

Neue Mitte der Schulgemeinschaft - Räumliches Konzept

Der an der Westflanke des Bestands verlaufende Flur wird auf ganzer Länge durch Abriss der Außenwand geöffnet. Eine Konstruktion aus Fertigbetonteilen – Stützen und Riegel – stützt die Decken und strukturiert eine „innere Fassade“.
Die „Naturwissenschaften“ sind als kompaktes dreigeschossiges Gebäude längs vor den einbündigen Mittelbau der Schule eingestellt.
Zwischen Altbau und Neubau spannt sich so ein über alle Geschosse durchgehender Freiraum auf – die neue Mitte der Schulgemeinschaft.
Torartige Zugänge der einzelnen Klassen sind über breite Stege an den Bestandsflur angebunden. Über die Funktion hinaus stehen sie bildhaft für Zugang und die Hinführung zu den (Lern-) Inhalten. Die vielfältigen Wege- und Blickbeziehungen schaffen Zentralität und einen lebendigen Ort der Kommunikation.
Die Lichtführung und ein reduziertes Materialkonzept machen die Erweiterung als zusammenhängenden neuen Bereich der Schule lesbar.
Die Aufnahme von Maßstab und Gliederung der Bestandsgebäude wiederum stärken die Einbindung der Erweiterung in den Gesamtzusammenhang. Als räumlich konstituierender Abschluss der Halle ist der Neubau einerseits als aktuelle Zeitschicht lesbar und andererseits Teil des Ganzen.

Schule als Passivhaus - Energie und Technik

Der Neubau der naturwissenschaftlichen Fachklassen erfolgt in Passivhausbauweise.
Entsprechend sind sämtliche Bauteile der Gebäudehülle hochgedämmt ausgeführt.
Die energetische Fassadensanierung des Bestands ergibt sich durch den Anbau als Synergie von selbst. Die Kompaktheit des Bestands wie auch die des Neubaus wird optimiert.
Das Bunsengymnasium ist an die Fernwärme angeschlossen. Die Schule verfügt zur Deckung des Strombedarfs zudem über eine Photovoltaikanlage.
Die Be - und Entlüftung wie auch die Beheizung der Fachräume erfolgt über ein Lüftungsgerät mit Wärmerückgewinnung und Einzelraumregelung.
Zu belüftende Laborschränke und Digestorien im Unterrichtsbereich werden raumluftunabhängig behandelt. Schüler und Lehrer haben über die Lüftungsflügel in der Fassade zudem „selbstbestimmt“ die Möglichkeit zu Lüften. Gegen Einbruch und Witterung geschützt, bieten diese Lüfter auch die Möglichkeit der sommerlichen
Nachtlüftung.

Erweiterung Bunsengymnasium Heidelberg

Aufgabe:
Neubau der naturwissenschaftlichen Fachklassen

Auszeichnung:
BDA Baden-Württemberg Hugo Häring 2017

Auftraggeber:
Stadt Heidelberg, Gebäudemanagement

NGF:  2.111 m2

Bauzeit: Bezug 2016

Planung:
Jöllenbeck & Wolf Architekten BDA, Lph 1-9
Mitarbeit:
Anja Bleh, Nadja Kopp, Marianne Taibon

Tragwerksplanung:
Ingenieurgruppe Bauen

HLS – Ingenieur :
Engineering Consult

Elektroingenieur:
Vlasak + Wolff Ingenieure

Brandschutzkonzept:
BESAG Sachverständigenbüro

Bauphysik:
Cischek Ingenieure

Fotografien:
Nikolay Kazakov

X