












Feuerwehr - DLRG Wieblingen
Feuerwehr und DLRG - aus 2 mach 1
Ausgelöst vom Kostendruck, getragen aus Einsicht in die Synergie einer gemeinsamen Anlage, entschieden sich die beiden Institutionen ein Gebäude am Ortseingang Heidelberg- Wieblingen zu errichten.
Entstanden ist ein langgezogener Baukörper mit markanter Präsenz zur Mannheimer Straße aber auch spielerischer Heiterkeit der unregelmäßigen Linienführung des leicht geneigten Daches. Neben der reinen Zweckerfüllung, den Fahrzeugen und Geräten der Hilfsorganisationen einen trockenen Stellplatz sowie Räumlichkeiten für Verwaltung,
Schulung und Geselligkeit zu bieten, dient das Gebäude auch als Werbeträger, nicht zuletzt zur Sicherung des Nachwuchses durch die aktive Jugendarbeit.
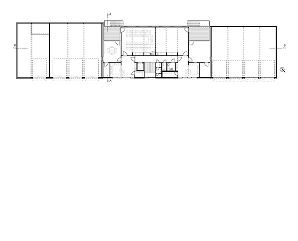
Links die Feuerwehr, rechts die DLRG
Vom mittig gelegenen Eingang aus werden im Erdgeschoss links die Verwaltungs- und Umkleideräume der Feuerwehr und rechts die der DLRG erschlossen, sowie die am Gebäudeende gelegenen Fahrzeughallen.
An die Fahrzeughalle der Feuerwehr schließt sich noch ein Katastrophenschutzlager
an. Die Eckfenster der Einsatzzentralen bieten einen Überblick über Fahrzeughalle und Ausfahrtsbereiche.
Im Obergeschoss befinden sich, ebenfalls hinter eigenen Abschlusstüren die Schulungs- und Jugendräume sowie jeweils eine eigene Küche mit Vorratsraum. Eine mobile Trennwand ermöglicht
den Zusammenschluss der beiden Schulungsräume für größere Veranstaltungen. Die beiden Jugendräume haben ein Sichtfenster zu den Fahrzeughallen sowie jeweils eine vorgelagerte Loggia mit Treppenabgang zum Gelände. Die vom Flur aus zugänglichen Sanitärräume teilen sich beide Einheiten.
2. Heimat
Die Atmosphäre in den Obergeschossen ist geprägt durch die Holzoberflächen der Brettsperrholzelemente, sie verleihen eine wohnliche Wärme, die Räume werden für die Gemeinschaften so zur „2.Heimat“. Die zur rückwärtigen Freifläche orientierten, großen Öffnungen der Versammlungs- und Jugendräume sind das zweite prägende
Element, es entsteht ein spannungsvolles Wechselspiel von Geborgenheit und Offenheit.
Passivhaus für die Aktiven
Den Vorgaben der Stadt Heidelberg folgend wurden die beheizten Räume im Passivhausstandard realisiert, die Heizenergie wird über Luftwärmepumpen erzeugt, auf dem Dach wurden Photovoltaikelemente installiert. Die beiden Fahrzeughallen sind als Minderbeheizte Raumvolumen ausgebildet.