










Sanierung Ratsaal Walldorf
„Unsere allgemeine Erfahrung besagt, dass Erinnerungen sich an prägnanten Sinneswahrnehmungen festmachen, an Dingen und Orten, an Tönen, Gerüchen und Ereignissen………………….Es gibt demnach keinen Grund anzunehmen, dass die moderne Architektur - ungeachtet ihrer Züge zu Erinnerungsfeindlichkeit in Ihrer eigenen Werkgeschichte - nicht genauso zum Träger vertrauter Erinnerung wird, wie wir dies von älteren Bauwerken kennen. Auch in modernen Bauten, die nicht auf eine ehrwürdige architektonische Ahnenreihe verweisen können, ist persönliche und soziale Erinnerung gespeichert……..“
Prof. Thomas Will
Im Jahr 2015 wird im Zuge einer eigentlich einfachen Sanierungsmassnahme des Betons am Rathaus der Stadt Walldorf eine schwerwiegende Problemstellung der Statik der Deckenkonstruktion im Ratssaal offensichtlich. Tragwerksplanung und Prüfstatik mussten die Tragfähigkeit der Betonrasterdecke grundsätzlich in Frage stellen - der Saal wurde kurzfristig gesperrt.
Mit den nun geführten Überlegungen zum Tragwerk aber auch zur Bauphysik und technischen Infrastruktur gerät die Sichtbetonarchitektur des markanten Gebäudes aus den 60- er Jahren in einen spannungsvollen Bezug zu bautechnischen und normativen Anforderungen der „aktuellen“ Standards. Verschiedene Lösungsansätze wurden von den Architekten mit den Fachingenieuren erarbeitet und mit der Bauherrschaft abgewogen.
In diesem Prozess festigte sich ein gemeinsames Verständnis vom Rathaus und im Besonderen vom Ratssaal als öffentlichem Raum von
hohem (Erinnerungs-) Wert - Innen wie Außen. Von „naheliegenden“ Sanierungskonzepten, wie Teilabriss oder Außendämmung, wurde Abstand genommend. Die Konzeption im Folgenden sieht die Aufgabe darin, Sanierung unter Erhalt der räumlichen Qualität, wie der Charakteristik von Fügung und Materialität, zu lösen.
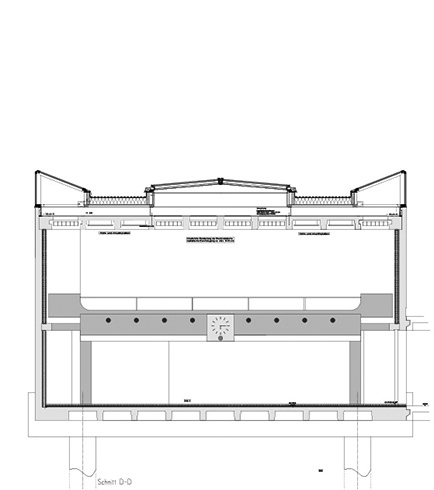
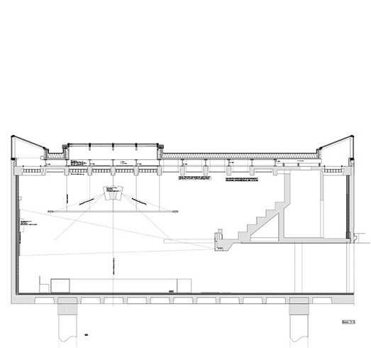
Veränderungen des Gefüges sind in der Regel unsichtbar und dienen entweder der Erfüllung technisch, konstruktiver Anforderungen oder auch zur Lösung der bauphysikalischen Defizite (Behaglichkeit, Energieeffizienz). Die wenigen sichtbaren Veränderungen dienen der Klärung der Raumwirkung (natürliches Licht / Oberlichter und Kunstlicht) oder dem Rückbau verschiedener im Rahmen der Erweiterung 1999-2001 eingebauten aber störender technischer Infrastrukturen (Lüftung). Zur Vorbereitung der Arbeiten wurden der Ratssaal vollständig auf den Rohbau zurückgebaut.
Die Maßnahmen im Einzelnen
Dachtragwerk:
- Demontage und Entsorgung der alten Dachaufbauten
- Entlasten der massiven Konstruktion durch Heraussägen von 28 Deckenfeldern
- Einbau einer unabhängig von der Bestandsdecke ablastenden Deckenkonstruktion
aus vor gespannten Stahlträgern IPE 330. Die Betonkonstruktion wird
hieran zur Stabilisierung mit Gewindestählen aufgehängt.
- Schaffen eines hochgedämmten Warmdachaufbaus über der neuen Konstruktion.
- Vergrößerung der Deckenoberlichter. Ersatz der alten Stahl Glas Konstruktion
durch schlanke thermisch getrennte Alu Pfosten-Riegel-Verglasungen.
- Betonsanierung (Verschluss Risse, Oberfläche) der Hohlkastendecke
- Einsatz von Kühl- Heizplatten zwischen den Rippen
Außenwand:
- Vollständige zerstörungsfreie Demontage der Eiche - Holzverkleidungen im
Saalinnern
- Ausbau und Neuverlegung technische Infrastruktur, Restrukturierung Unterkonstruktion
- Aufbau einer mineralischen Innendämmung mit Dampfsperrebene
- Aufarbeiten der Holzverkleidungen und Wiedermontage der sanierten Paneele
- Betonsanierung (Verschluss Risse, Oberfläche) Restrukturierung und Sanierung Betonrelief Aussen
Boden:
- Ausbau der Bodenaufbauten, Rückbau auf O.K. Rohdecke
- Vollständig neuer Aufbau mit Vakuumdämmung und Fußbodenheizung in Zementestrich
- Integration Infrastruktur Elektro und Medien
- Verlegung neuer Böden (Recyclingmaterial)