















Erweiterungsbau Landratsamt Tuttlingen
Städtebau
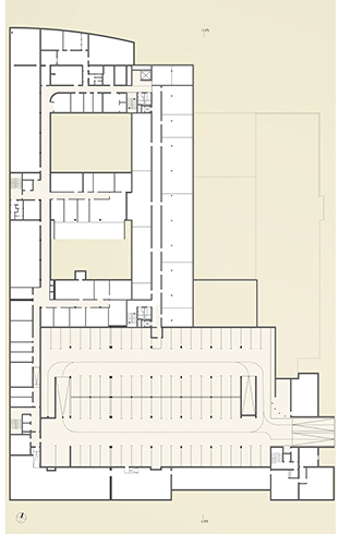
Die Grundzüge der städtebaulichen Einordnung des Landratsamtes Tuttlingen sind in der bestehenden Bebauung bereits angelegt. Die Erweiterung vervollständigt die vorhandene Figur, schafft eine Einheit mit dem Bestand und folgt damit dem Konzept des Tuttlinger Quartierblocks.
Dabei werden je nach Orientierung die Ränder auf differenzierte Weise gefasst - zwischen Stadt und Donau:
Während der Bestand die städtische Seite charakteristisch zur Bahnhofstrasse und zur Riekerstrasse durch die Blockrandbebauung steinern schliesst, tritt die Randbebauung der Erweiterung gestaffelt zur Werder - und zur Weimarstrasse zurück und vermittelt zur Donau und zum Landschaftsraum durch eine grünes Vorfeld.
Ein neuer Platzraum entsteht durch das Schließen der baulichen Fassung des Eingangshofs. Alle öffentlichen Flächen und Zugänge orientieren sich auf diesen urbanen Raum - das LRA Forum.
Räumliche Organisation
Mit der Anordnung der öffentlichen Nutzungen des Programms an der Südfassade zum LRA Forum sind diese Anlaufpunkte mit den zugehörigen Servicepoints zentral und auf kurzem Wege auffindbar - eine bürgernahe transparente Verwaltung.
Gleichzeitig vermeidet die Konzentration der Serviceflächen Querungen durch Externe in störungsempfindlichen Programmflächen. Diese werden im Netz der Erschließung unabhängig zugänglich und abgerückt angeordnet.
Mit dem Anschluss der Neubauflächen an den Bestand ergibt sich eine
enge Vernetzung der neuen und alten Programmflächen. Kurze interne Wege und maximale Synergien sind die Folge.
Die Querschnittsämter Dezernat II, die Flächen des Landrats und die Programmflächen für Kantine und Besprechungsräume werden zentral im mittleren Gebäuderiegel angeordnet.
Die Anordnung der Treppenhäuser (1. Rettungswege) ermöglicht die Bildung von einzelnen Einheiten mit einer Geschossfläche < 400 m2. Im Wegenetz gibt sich immer in entgegengesetzter Richtung zum Treppenhaus ein weiterer Fluchtweg in den angrenzenden Brandabschnitt. Diese Vorgabe schafft die Voraussetzungen, die Trennwände zur Erschließung (Kombizone ) ohne Brandschutz- anforderung wirtschaftlich und transparent ausführen zu können.
Ein 1,50m Raster ist im Zusammenspiel mit der Dreispännerstruktur Grundlage für die dauerhaft flexible Ausbildung von Ein - Zwei- oder Dreibundstrukturen wie auch für die freie Gliederung in Raumeinheiten gewünschter Größe.
Den Treppenhäusern zugeordnet sind Sanitäreinrichtungen, Schachtverteilungen (Anschluss an Technik UG) und Aufzüge. Die Lage der Treppenhäuser ermöglicht im Osten (Dezernat I) und im Norden (Landrat, Kantine, ....) externe Zugänge.
Eine Teilunterkellerung wird im Anschluss an die vorhandene Unterkellerung des Bestands angeordnet und nimmt zentral die Programmflächen der Technik, des Archivs und weiterer Nebenräume auf.