






Wohnen an der Kramerschen Mühle
Die Aufgabe
Die Bebauung des Wiesengrundstücks östlich der „Kramer Mühle“ muss in besonderem Maße auf das historische Ensemble der ehemaligen Mühle, die für öffentliche Nutzungen entwickelt und ausgebaut werden soll, reagieren und sich sensibel in die unmittelbare Nachbarschaften einfügen. Voraussetzung für eine in städtebaulicher Hinsicht konfliktfreie Realisierung der Wohnbebauung ist die Übernahme der Maßstäblichkeit der vorhandenen Bebauung sowie eine Orientierung der Außenräume, die mit den nachbarschaftlichen Bezügen sinnvolle und ergänzende Wechselbeziehung eingeht.
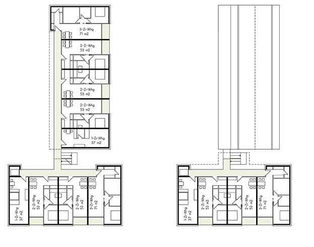
Wohnungsmix und Wohnnutzung
Beispielhaft dargestellt wurde ein Wohnungsmix aus insgesamt 21 Wohnungen, bestehend aus 5x 3- Zimmer- Wohnungen, 12x 2- Zimmer- Wohnungen und 4x 1- Zimmer- Wohnungen.
Die beiden Baukörper und insbesondere die Laubengangerschließung bieten jedoch die Möglichkeit, die Anzahl der jeweiligen Wohnungsgrößen im weiteren Planungs- und Abstimmungsprozess flexibel zu variieren, unter Beibehaltung der städtebaulichen Figur. Die Teilung der Wohnnutzung in 2 getrennte Baukörper bietet außerdem die Option einer unkomplizierten Teilunterkellerung mit optimiertem Flächenangebot für die einzelnen Wohneinheiten.
Jeder Wohnung kann im 3- geschossigen Baukörper ein Abstellraum zugeordnet werden sowie insgesamt ein Wasch- und Trockenraum.
Erschließung und Parkierung
Für jede Wohnung wird ein Kraftfahrzeugstellplatz, d.h. insgesamt 21 Stellplätze, im südlichen Grundstücksbereich nachgewiesen, somit wird die gesamte Wohnanlage über den Karpfenweg erschlossen. Die neu herzustellende Zufahrt auf dem Grundstück dient gleichzeitig als rückwärtige Anlieferung für die spätere Nutzung der Kramer- Mühle. Die nach Landesbauordnung notwendigen Fahrradstellplätze sind in einem erdgeschossigen Raum in zentraler Lage nachgewiesen.